Description
Idéalement situées sur le plateau de Vessy, proche des commodités et des écoles, ces jolies villas seront réalisée fin 2019.
Description des 4 villas :
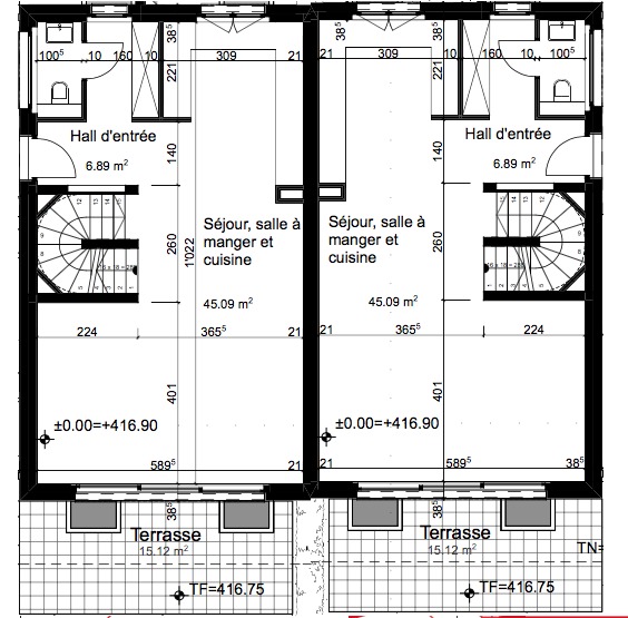
Villa A
Rez :
1 hall d'entrée 6.70 m2
1 cuisine séjour salle à manger 45.10 m2
1 wc visiteurs
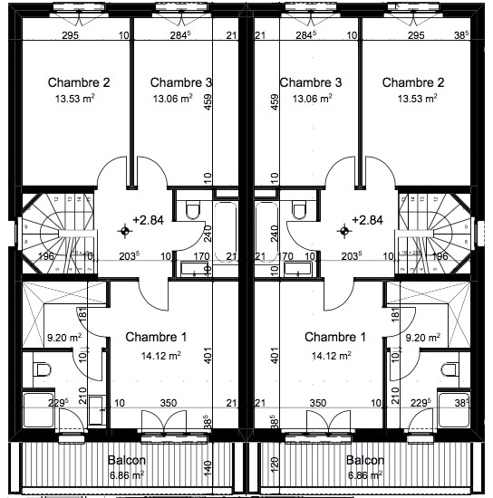
Etage :
1 chambre 14.10 m2
1 chambre 13.50 m2
1 salle de bains
1 suite parentale 14.10m2 avec salle de bains 9.20 m2
Sous-sol :
1 salle de jeux 24.00 m2
1 chaufferie / buanderie 13.00 m2
1 cave 14.10 m2
Extérieur :
1place de parking avec couvert et une place de parking non couverte
Maisons HPE (Haute Performance Energétique)








