Descrizione
Située dans la charmante et dynamique commune de Veyrier, ce town-house en triplex saura vous séduire par son volume généreux.
Sa distribution convient parfaitement pour recevoir une famille.
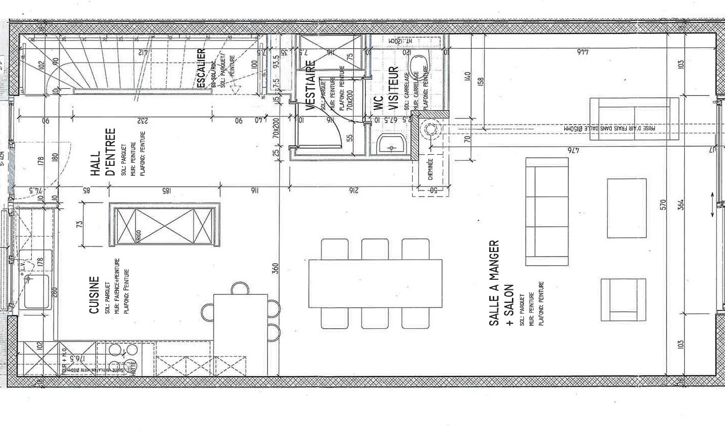
REZ :
. Hall d'entrée
. WC visiteurs
. Généreuse pièce de vie, avec cuisine ouverte, avec accès à la terrasse et au petit jardin
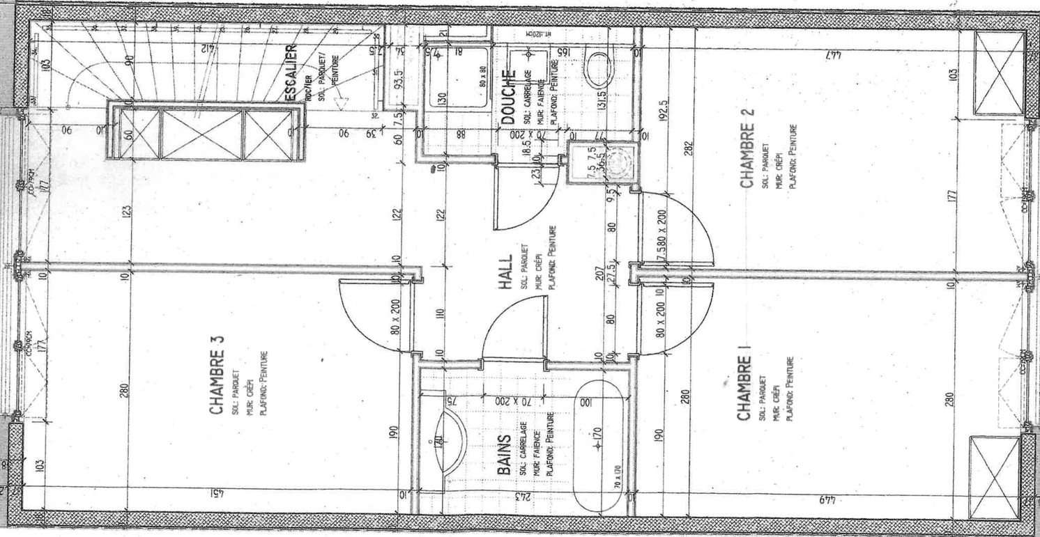
ETAGE :
. 3 chambres
. Salle de bains
. Salle de douches
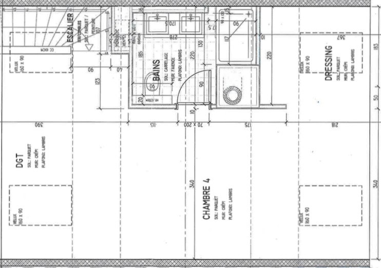
COMBLES : Belle hauteur sous plafond avec 4 vélux ce qui offre une belle luminosité
. Grande chambre avec dressing et salle de douche/WC
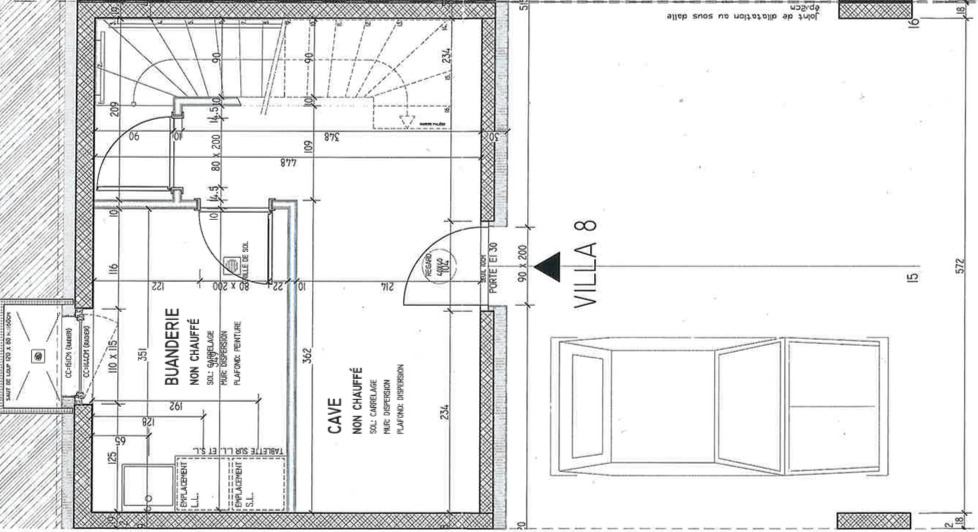
Sous-sol :
. Buanderie
. Local technique
. Cave
Accès direct aux 3 places de parking dont une est équipée d'une station de recharge
Les commerces de Veyrier, et l'arrêt de bus 8 sont à quelques pas de la résidence
Sa distribution convient parfaitement pour recevoir une famille.
REZ :
. Hall d'entrée
. WC visiteurs
. Généreuse pièce de vie, avec cuisine ouverte, avec accès à la terrasse et au petit jardin
ETAGE :
. 3 chambres
. Salle de bains
. Salle de douches
COMBLES : Belle hauteur sous plafond avec 4 vélux ce qui offre une belle luminosité
. Grande chambre avec dressing et salle de douche/WC
Sous-sol :
. Buanderie
. Local technique
. Cave
Accès direct aux 3 places de parking dont une est équipée d'une station de recharge
Les commerces de Veyrier, et l'arrêt de bus 8 sont à quelques pas de la résidence









